Beschreibung:
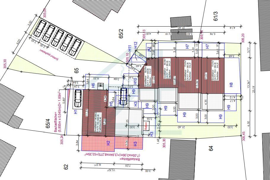
Die geplante Bebauung der Wohnanlage befindet sich im rückwärtigen und ruhig gelegenen Bereich des sonnigen Grundstückes.Hier kann zum Beispiel auf dem bestehenden Kellergeschoss ein Dreifamilienhaus (Haus 5) und eine Anlage mit vier Reihenhäusern, mit bestätigter Baugenehmigung, errichtet werden.
Im Dreifamilienhaus steht dazu eine Wohnfläche von ca. 285 m² zur Verfügung.
Die Reihenhäuser sind an die Grundstückssituation angepasst und haben folgende Wohnflächen:
Reihenhaus 1= 102 m2
Reihenhaus 2= 131 m2
Reihenhaus 3= 185 m2
Reihenhaus 4= 172 m2
Somit können hier nach dem Beispiel insgesamt ca. 875 m² Wohnfläche entstehen.
Da die Kellergeschosshöhe mit 240 cm vorgesehen ist, könnten in den Reihenhäusern (1,4), mittels Lichtgräben und entsprechender Fenster zusätzlich noch wohnflächenwertige 85 m² entstehen, die lediglich hinsichtlich der Geschossflächenzahl nicht als Wohnfläche gemäß der Verordnung zur Berechnung der Wohnfläche (WIFV) ausgewiesen werden können. Dementsprechend können zusätzliche 90 m² entstehen.
Lagebeschreibung:
Die Stadt Nürnberg liegt im Norden des Bundeslandes Bayern. Das Stadtbild ist von mittelalterlicher Architektur, durch die Festungsmauern und Türme der Altstadt, geprägt. Am Nordrand der Altstadt erhebt sich, die wichtigste Sehenswürdig der Stadt, die Kaiserburg.Das Grundstück liegt im Westen der Stadt Nürnberg.
Die Immobilie liegt in einer gut angebundenen und infrastrukturell hervorragend erschlossenen Gegend in Nürnberg. Besonders hervorzuheben ist die exzellente Anbindung an den öffentlichen Nahverkehr, mit mehreren Bushaltestellen in unmittelbarer Nähe und der nächsten Bahnstation in etwa 1,5 km Entfernung. Dies ermöglicht eine schnelle und unkomplizierte Erreichbarkeit des Stadtzentrums und anderer wichtiger Ziele.
Für Autofahrer ist die Autobahnauffahrt zur A 73 nur ca. 1,5 km entfernt, was eine zügige Verbindung zu den umliegenden Städten und Regionen gewährleistet. Der nächste Flughafen ist in etwa 10 km erreichbar, was für Geschäftsreisende von Vorteil ist.
In der direkten Umgebung befinden sich zahlreiche Einkaufsmöglichkeiten, weniger als 1 km entfernt. Diese Nähe zu Supermärkten sorgt für eine bequeme Versorgung im Alltag.
Gesundheitseinrichtungen sind ebenfalls gut erreichbar. Eine renommierte Zahnarztpraxis ist nur wenige hundert Meter entfernt, und mehrere Fachärzte befinden sich in einem Umkreis von ca. 1 km. Dies gewährleistet eine umfassende medizinische Versorgung in der Nähe.
Zusätzlich bietet die Lage eine Vielzahl an Freizeitmöglichkeiten. Ein großer Park ist in etwa 1 km Entfernung zu finden, ideal für Erholung und sportliche Aktivitäten. Die Nähe zu kulturellen Einrichtungen, wie dem Stadttheater, das in etwa 2 km Entfernung liegt, rundet das Angebot ab und bietet vielfältige Möglichkeiten zur Freizeitgestaltung.
Die unmittelbare Umgebung ist sowohl von Wohnhäusern als auch von einem ausgedehnten Gewerbegebiet geprägt.
Am Standort für die geplante Wohnanlage ist die Höfener Straße, eine ruhige Wohngebietsstraße.
Ausstattung:
Energieausweis:
Sonstige Angaben:
Die Baugenehmigung aus dem ja 2021 ist fristgemäß verlängert wordenSie wollen mehr erfahren?
Wenn Sie uns eine Nachricht über das Kontaktformular senden, melden wir uns schnellstmöglich bei Ihnen:









